





















Santos herleeft. Het voormalige pakhuis op de Brede Hilledijk bij de Rotterdamse Rijnhaven fungeert nu als modern-historische huisvesting van het Nederlands Fotomuseum. In hun gezamenlijk renovatie-ontwerp hebben Renner Hainke Wirth Zirn Architekten uit Hamburg en WDJArchitecten uit Rotterdam de benodigde nieuwe elementen met eerbied voor de monumentale oudbouw geïntegreerd (zowel in als óp het gebouw). Tegelijkertijd is de bestaande kenmerkende componenten zoals de bakstenen gevels, houten vloeren en gietijzeren hoofddraagconstructie een vernieuwde functionele en esthetische betekenis verleend.
De geschiedenis van pakhuis Santos voert terug naar het prille begin van de vorige eeuw. Architecten J.P. Stok en J.J. Kanters verzorgen het ontwerp, in 1903 wordt de bouw afgerond en het pakhuis gaat als opslag- en distributieplaats voor koffie in gebruik. Inmiddels heeft het gebouw de status van Rijksmonument.
In 2021 starten Renner Hainke Wirth Zirn en WDJ met het ontwerp voor een restauratie en verbouwing van het gebouw dat ondertussen veel van de oorspronkelijke grandeur is kwijtgeraakt. De architectencombinatie werkt in opdracht van stilwerk, een Duits designwarenhuis dat wel brood ziet in Santos als nieuw Nederlands filiaal.
Het Leidse Burgy Bouwbedrijf neemt de renovatie- en restauratiewerkzaamheden ter hand, maar stilwerk krijgt haar ‘businesscase’ niet rond en moet het gebouw van de hand doen.
De Rotterdamse filantropische stichting Droom en Daad weet dat het Nederlands Fotomuseum een passend onderkomen zoekt, als alternatief voor het huidige onderkomen in gebouw Las Palmas aan de overkant van de straat. In Las Palmas deelt het Fotomuseum ruimten samen met andere huurders, wat de zichtbaarheid van het museum vertroebelt. Bovendien vormt de gegeven indeling van het pand geregeld een sta-in-de-weg voor de museale logistieke processen.
Droom en Daad schenkt het museum de benodigde 38 miljoen euro om Santos aan te kopen. Voorwaarde is wel dat het Fotomuseum de sleutel weer inlevert bij Droom en Daad, mocht ’t in de toekomst naar elders uitwijken. Voorlopig is dat allerminst aan de orde. Met Santos, inmiddels geheel gerenoveerd en gerestaureerd, beschikt het museum straks over alle geschikte ruimte voor expositie, opslag en publieke voorzieningen.
Vóór de herontwikkeling verkeerde het verlaten pand niet in opperbeste staat van onderhoud, maar de authentieke hoofdcomponenten waren nog in een goede, herbruikbare conditie. Santos bestaat sinds 1903 uit een skeletvormige hoofddraagconstructie van gietijzeren kolommen en balken met houten vloeren en gemetselde gevels over in totaal zes bouwlagen en een kelder.
De verdiepingvloeren zijn destijds gemaakt van twee lagen houten planken die, elk in een andere richting, diagonaal op de balken zijn gelegd. Hierdoor waren de vloeren sterk genoeg voor de zware koffiebalen. Nu komt dat de grote draagvermogen goed van pas voor het depot van het museum, met zo’n 6,5 miljoen objecten.
Bij elke hogere verdieping worden de bakstenen muren minder dik en verjongen ook de gietijzeren kolommen omdat naar boven toe minder draagkracht is vereist en materiaal (ook toen) nu eenmaal kostbaar.
De robuuste metselwerkgevels sieren niet alleen de buitenkant van het pand, maar ook het interieur. Van het isoleren van het metselwerk is afgezien ter behoud van het oorspronkelijke karakter van de ruimten, maar ook om vocht bij de oplegging van de balken in de buitenmuren te voorkomen. Openingen in de gevels, ooit afgesloten met laaddeuren en luiken, zijn nu toegerust met houten achterzetkozijnen met isolatieglas.
De naar binnen draaiende laaddeuren zijn iets naar binnen verplaatst waardoor ze nu onmiskenbaar deel uitmaken van het interieur. De deuren zijn desgewenst af te sluiten om de expositieruimten te verduisteren.
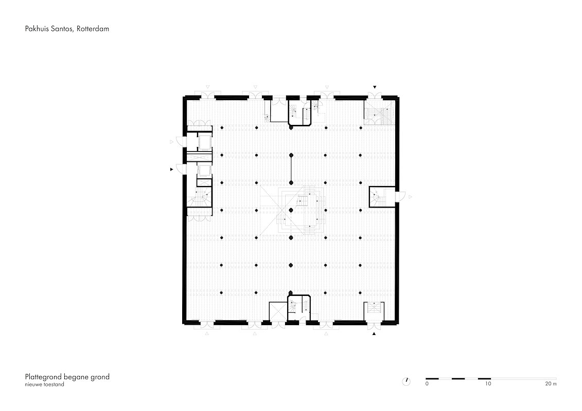
De originele trappenhuizen tegen de noord- en zuidgevel zijn niet meer in bedrijf, maar wel blijven staan vanwege de monumentenstatus van Santos. In de ontsluiting is nu voorzien via liften en een ensemble van stalen trappen in de centrale vide, oplopend van de begane-grondvloer tot in de tweelaagse optop op het oorspronkelijke dak.
Deze nieuwe opbouw staat welhaast in ultiem contrast met de bestaande onderbouw: transparante lichtheid versus massieve stevigheid. De toevoeging is vormgeven als een sculpturale kroon met een ongelijkmatig sheddak. Het dak is volledig beglaasd waardoor het daglicht tot diep in de open ruimte kan doordringen.
Rondom de opbouw is een semi-transparante huid gevouwen van geperforeerde, goudkleurige aluminiumplaat. Aan de onderzijde rust de huid op teruggelegen glasgevels, waardoor de nieuwe kroon boven het oude gebouw lijkt te zweven. Om de relatie met buiten te versterken, is de aluminium beplating doorgezet ín de optop, als afwerking rond de vide en de hoofdtrappartij.
Met de komst van de opbouw beschikt het museum straks over acht lagen met open plattegronden en afwisselend transparante en meer gesloten gevels, waardoor de verschillende museumfuncties een passende behuizing krijgen.
De verdiepingen van de oudbouw hebben overwegend gesloten gevels, geschikt voor het exposeren en bewaren van foto’s, negatieven en andere fotografische objecten die weinig daglicht kunnen verdragen. Zo zijn de tweede verdieping en een deel van de derde bestemd als depot. Het andere deel van de derde verdieping is gereserveerd voor atelierruimten waar objecten worden gerestaureerd of geconserveerd. Depots en ateliers liggen in geklimatiseerde ruimten, achter glazen binnenwanden en daarmee zichtbaar voor de bezoekers.
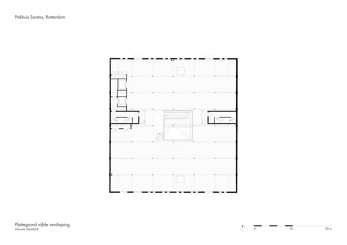
De bezoekers komen binnen op de vrij toegankelijke begane grond, met bibliotheek, museumwinkel, podium en het café als ‘huiskamer voor de buurt’. De museumroute start op de eerste expositie-verdieping en doet na de depots en ateliers nog eens twee expositieverdiepingen aan, om te eindigen in de nieuwe kroon. In de onderste laag hiervan zijn het restaurant en de kantoren ondergebracht. De topverdieping biedt plaats aan 16 short-stay-appartementen, vanwaaruit de bewoners door de geperforeerde gevels heen, een panoramisch uitzicht genieten over de Maasstad.
Locatie: Brede Hilledijk 95, Katendrecht, Rotterdam • Omvang: 9.800 m2 • Opening: tweede helft 2025 • Start bouw: augustus 2021 • Opdracht: Stilwerk • Gebruik: Nederlands Fotomuseum • Herbestemmingsontwerp: Renner Hainke Wirth Zirn Architekten (Hamburg) en WDJArchitecten (Rotterdam) • Constructief ontwerp: Pieters • Uitvoering; Burgy Bouwbedrijf • Staalconstructies: Goudriaan Staalconstructies Foto’s: Studio Hans Wilschut • Redactie: Arend Dolsma (Bouwen met Staal), maart 2026.